Overview
- Updated On:
- 5 września, 2025
- 47 m2
- Year Built: 1970
Description
Ogłoszenie prywatne – zakup bezpośrednio od właściciela.
Posiadam na sprzedaż funkcjonalne mieszkanie 3–pokojowe o powierzchni 47,2 m2 z dużą przebudowaną łazienką zlokalizowane na wysokim parterze w IV piętrowym budynku przy ul. Okólnej w Krakowie. Mieszkanie dostępne od zaraz – stan do zamieszkania.
Lokal mieszkalny posiada księgę wieczystą (pełna własność).
Informacje o mieszkaniu
Funkcjonalne, wygodne mieszkanie na parterze w zielonej i cichej części Krakowa z dobrym dojazdem do centrum.
Mieszkanie znajduje się na parterze budynku 4 piętrowego z lat 70-tych, stan do zamieszkania.
Blok na zewnętrznej części osiedla, w dobrym stanie, na bieżąco odnawiany po termomodernizacji.
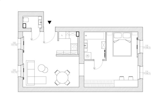
Mieszkanie składa się z:
– otwartej kuchni połączonej z salonem
– dwóch sypialni
– powiększonej łazienki z WC
– przedpokoju
– piwnicy.
Stan mieszkania
W pierwotnym układzie lokal składał się z 3 niezależnych pokoi oraz osobnej kuchni. W 2000 roku została powiększona łazienka oraz połączono kuchnie z dużym pokojem (salon). Na podłodze są panele oraz płytki, drzwi wymieniono z ościeżnicami oraz okna wymieniono na PCV.
Mieszkanie przęsło generalny remont w 2014 roku.
Mieszkanie w stanie użytkowanym.
Ekspozycja
Ekspozycja okien pokojowych – zachód.
Parkowanie
Przed blokiem znajduję ogólnodostępny parking, nie obowiązuje opłata za strefę parkowania. Możliwość rezerwacji indywidualnego odpłatnego, strzeżonego miejsca parkingowego (odległość 400 m).
Balkon
Do mieszkania można odpłatnie dobudować balkon.
Wyposażenie
W mieszkaniu są częściowo meble i AGD, mogą zostać sprzedane z mieszkaniem lub usunięte.
Na terenie osiedla znajduję się niezbędna infrastruktura społeczna:
– plac ze sklepikami – 50 m
– sklep Biedronka – 100 m
– przedszkole – 500 m
– szkoła podstawowa – 500 m
– liceum ogólnokształcące – 800 m
– poradnia rejonowa – 400 m
– basen, Com-Con Zone – 400 m
– autobus, tramwaj – 400 m
Przykładowe odległości od mieszkania:
– park Rzeczny Drwinka – 500 m
– park im. Anny i Erazma Jerzmanowskich w Prokocimiu – 1,2 km
– plaża Bagry – 2,6 km
– szpital specjalistyczny – 2,3 km
– wyjazd na obwodnice – 3 km
– Rynek Główny – 8 km
– dworzec PKP Kraków Płaszów – 2,3 km
– dworzec PKP Kraków Główny – 8 km
– Międzynarodowy Port Lotniczy im. Jana Pawła II Kraków-Balice – 25 km
Na osiedlu są tereny zielone, place zabaw oraz wybieg dla psów.
Opłaty
Opłaty miesięczne dla 3 osób ok. 700 zł (zawiera zaliczki na ogrzewanie, wodę ciepła i zimną, fundusz remontowy, koszty administracji, wywóz śmieci).
Miasto dostarcza ciepłą wodę i ogrzewanie – brak pieca gazowego w łazience.
Komunikacja
4 minuty – przystanek Wlotowa, linie tramwajowe dzienne oraz nocne; linie autobusowe: miejskie, miejskie przyspieszone, aglomeracyjne dzienne, linie miejskie nocne; prywatni przewoźnicy.
Dostępność
Mieszkanie dostępne od zaraz.
Cena: 636 000
Cena do negocjacji.
Ogłoszenie prywatne, zakup bezpośrednio od właściciela.
Nie współpracuje z biurami nieruchomości.
- Principal and Interest
- Property Tax
- HOA fee


















