Overview
- Updated On:
- 30 marca, 2026
- 72 m2
- Year Built: 1985
Description
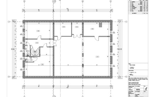
Na sprzedaż 3 pokojowe mieszkanie w bloku na os. Wyszyńskiego w bardzo dobrej lokalizacji. Stan prawny w pełni uregulowany. Metraż mieszkania 72m2, w pobliżu wszelkiego rodzaju punkty usługowe, sklepy Lidl i Action, basen, przedszkole i szkoła oraz apteki. Mieszkanie posiada idealny rozkład dla rodzin z dziećmi. Mieszkanie jest do remontu, więc można je urządzić wedle własnego uznania również pod inwestycję. Przy bloku darmowe parkingi. W cenie komórka lokatorska. Plan lokalu w załączeniu. Możliwość zakupu na kredyt; darmowa konsultacja kredytowa. Zainteresowane osoby proszę o kontakt pod numerem 790291218.
Energy Class: A+
Energy class A+
A+A
B
C
D
E
F
G
H
Property Id : 158728
Price: zł 320,000
Property Size: 72 m2
Rooms: 3
Year Built: 1985
Other Features
Blok
piętro: 0/4
rok budowy: 1985
rynek:
zł 1,640.70
per month- Principal and Interest
- Property Tax
- HOA fee
zł 1,240.70
czw.
09
kwi
pt.
10
kwi
sob.
11
kwi
niedz.
12
kwi
pon.
13
kwi
wt.
14
kwi
śr.
15
kwi
czw.
16
kwi
pt.
17
kwi
sob.
18
kwi


















